Александр Гамалей
Заведующий кафедрой
Новосибирский государственный университет архитектуры, дизайна и искусств имени А.Д. Крячкова
gamaley10@mail.ru, ORCID
Валерий Арбатский
Профессор
Новосибирский государственный университет архитектуры, дизайна и искусств имени А.Д. Крячкова
1647592@mail.ru, ORCID
Aleksandr Gamalej
Head of the Department
Kryachkov Novosibirsk State University of Architecture, Design and Arts
gamaley10@mail.ru, ORCID
Valerij Arbatskij
Professor
Kryachkov Novosibirsk State University of Architecture, Design and Arts
1647592@mail.ru, ORCID
Аннотация
В статье рассматриваются некоторые концептуальные направления перспективного развития архитектурной среды общественного и рекреационного назначения. Анализируются возможности развития познавательно-туристической экосистемы. Выявляются новые туристические познавательные пространства. Даются предложения по архитектурно-дизайнерскому обустройству пешеходной инфраструктуры.
Abstract
The article discusses some conceptual directions for the future development of the architectural environment for public and recreational purposes. The possibilities for the development of the educational tourism ecosystem are analyzed. New tourist educational spaces are being identified. Proposals are given for the architectural and design arrangement of pedestrian infrastructure.
Ключевые слова: креативная среда, экспериментальное проектирование, общественно-рекреационная среда, новосибирский Академгородок, познавательно-туристическая экосистема
Keywords: creative environment, experimental design, social and recreational environment, Novosibirsk Akademgorodok, educational and tourism ecosystem
Введение
Актуальность исследований связана с возрастающей значимостью историко-культурного потенциала Новосибирского Академгородка, получившего статус достопримечательного места.
Объектом исследования являются: архитектурно-ландшафтная среда Верхней зоны Новосибирского Академгородка в целом и ее основных средообразующих комплексов и структур.
На данном этапе в качестве первоочередных исследуются общественно-пешеходные и рекреационные пространства, а также возможности формирования познавательно-туристической экосистемы объекта культурного наследия — достопримечательного места «Новосибирский Академгородок». Главной целью настоящего исследования является выявление инновационных аспектов концепции пространственно-средового развития Новосибирского Академгородка на современном этапе, в контексте его нового статуса как объекта культурного наследия — достопримечательного места.
В соответствии с поставленной целью в исследовании решаются следующие задачи:
- анализ существующего состояния и выявление пространственно-средовых параметров и характеристик пешеходных пространств Академгородка на нескольких этапах его развития;
- изучение и анализ системы рекреационных пространств верхней зоны, определяющих специфику и уникальность архитектурно-ландшафтной среды Академгородка;
- выявление основных направлений развития пространств научного, музейного и общественного назначения, в том числе разработки концептуально-поисковых и экспериментальных проектов, дизайн-кодов, вариантных сценарных моделей и т.д. [Гамалей, 2021, с. 31–33];
- выявление и обустройство оптимальных познавательно-туристических маршрутов, объединенных в экосистему на основе выявления функций науки и образования.
Методическую основу исследования составляет средовой подход, рассматривающий среду обитания человека как феномен природно-рукотворного происхождения, учитывающий уникальность и особенности исторически сложившейся архитектурно-ландшафтной среды Новосибирского Академгородка, её научно-культурный потенциал, мнения и предпочтения горожан, так называемый «дух» места и т.д.
В исследовании используют методы средового анализа, включающие натурные обследования с построением маршрутных карт-схем и определением ключевых точек восприятия; разработки дизайн-кодов исследуемых пространств; средового концептуального моделирования; инструментов пространственного брендинга и др.
В процессе работы проводились экспериментальные исследования в рамках выполненных выпускных квалификационных работ, которые в последствии были удостоены диломами международных конкурсов в области архитектуры и дизайна архитектурной среды:
- «Модернизация пешеходной среды Верхней зоны Новосибирского Академгородка»; студент Вузова В.И., руководитель Гамалей А.А.;
- «Система рекреационных пространств Верхней зоны Академгородка города Новосибирска»; студент Каплунская К.С., руководитель Гамалей А.А., Смолякова И.В. Диплом 1 степени МООСАО;
- «Дизайн интерьера музея академика М.А. Лаврентьева в Новосибирском Академгородке»; студент Курапова Т.Д., руководитель Смолякова И.В. Диплом 1 степени МООСАО.
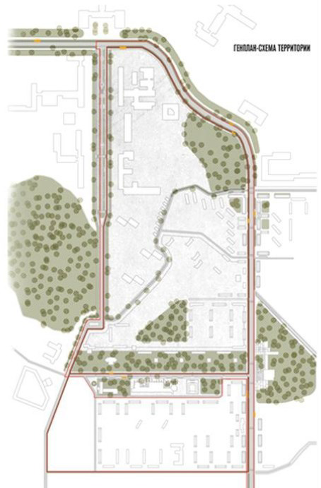
В результате проведения экспериментального проектирования впервые были созданы функционально-планировочные модели (схемы) пространственно-средового развития объекта культурного наследия — достопримечательного места Новосибирский Академгородок (рисунки 1, 2, 3).

Figure 1. Modernization of pedestrian environment of the Upper Zone of Academgorodok in Novosibirsk

Figure 2. The system of recreational spaces in the Upper Zone of the Academgorodok in Novosibirsk

Figure 3. Design of the museum environment by academian M.A. Lavrentiev in Academgorodok in Novosibirsk
Одна из главных проблем современного этапа развития Академгородка — отсутствие адекватной и комплексной концепции преобразования и развития его структуры.
Реновация, включающая в себя модернизацию, а также снос и новое строительство отдельных средовых объектов, реализуется фрагментарно и ситуативно, не основываясь на едином, всесторонне обоснованном подходе и целеполагании.
В случае дальнейшего распространения подобных тенденций с большой степенью вероятности можно прогнозировать неизбежность необратимых негативных последствий, таких, как — утрата идентичности среды жизнедеятельности научного центра, ее особо значимых функционально-средовых качеств, появление в исторически сложившемся контексте дисгармоничных компонентов, разрушающих существующий баланс между архитектурной составляющей и природным окружением.
Очевидно, нет необходимости доказывать, что складывающаяся ситуация противоречит статусу Академгородка как достопримечательного места, как охраняемого объекта историко-культурного наследия.
Наличием вышеуказанной проблемы обуславливается актуальность настоящего исследования.
Представляется, что достижение поставленной цели исследования — выявление инновационных аспектов развития архитектурно-ландшафтной среды Академгородка на современном этапе — позволит реализовать начальный шаг в направлении разработки концептуальной модели средовой реновации на перспективу [Десятниченко, Запорожан, Куклиня 2017].
Научный задел по данной теме обусловлен проведенными аналогичными исследованиями на кафедре ДАС НГУАДИ за период 2015–2020гг., результатами которых были выполненные под руководством ведущих преподавателей кафедры, а также экспериментальными разработками в области дизайн-проектирования общественно-пешеходных пространств Новосибирского Академгородка. Под руководством профессора кафедры Арбатского В.П. было выполнено магистерское исследование на тему «Дизайн-код наукоградов Новосибирской агломерации». Подготовлены тезисы научных конференций. В настоящее время в рамках НИР кафедры ведется сбор и систематизация исходных данных, проводятся натурные обследования и экспериментальное проектирование в рамках ВКР по тематике «Академгородок 2.0», осуществляется написание статей (Гамалей А.А., Арбатский В.П., Давыденко С.А., Кубрина А.А.). Некоторые апробации были дололжены на НПК «Развитие креативных индустрий в современном мире».
Планируется, что основные выводы и рекомендации, полученные в результате выполнения исследований, будут представлять научный и практический интерес в рамках реализации данной региональной программы, а также в целях разработки комплексной концепции реновации архитектурно-ландшафтной среды научного центра.
Научная новизна результатов исследований состоит в следующем:
- впервые современный этап в развитии архитектурно-ландшафтной среды Академгородка (2000–2030 годы) классифицируется как период ее радикального преобразования (реновации) [Арбатский, 2022, с. 36–38];
- впервые обосновывается актуальность постановки вопроса о разработке комплексной концепции реновации архитектурно-ландшафтной среды Академгородка, в основе которой содержится двуединая задача — сохранения ее уникальных, ключевых параметров и качеств, а также создания максимально благоприятных условий жизнедеятельности на уровне современных требований;
- впервые на основе средовых методов выявляются инновационные аспекты формирования познавательно-туристической экосистемы верхней зоны Новосибирского Академгородка.
Исследование включает в себя несколько этапов: сбор исходных материалов; натурные обследования, выявление средовой проблематики и формулировку предварительной гипотезы. В заключении планируется использование основных результатов в дальнейших научных исследованиях, а также в курсовом и дипломном проектировании.
Основные разделы исследования включают проблематику связанную с формированием и развитием архитектурной среды общественно-пешеходных пространств. Данное направление включает в себя проведение экспериментальных работ (концептуальных проектов), выполненных с участием студентов под руководством кафедры дизайна архитектурной среды. В процессе выполнения концептуальных проектов осуществлялся сбор исходных данных, информационный поиск аналоговых примеров из отечественного и зарубежного опыта; проводились натурные обследования, а также аналитическое изучение материалов с целью выявления средовой проблематики.
Одной из задач исследования является решение проблемы формирования и развития архитектурно-ландшафтной среды рекреационных пространств, а также формирования пространств музейного и познавательно-туристического назначения.
Особенности современного этапа развития архитектурной среды Новосибирского Академгородка является насущная потребность формирования познавательно-туристической экосистемы, которая может стать одним из драйверов ее развития.
Выводы
Обобщение и оценка результатов исследований, позволяет сформулировать следующие выводы.
- Главной особенностью современного этапа (2000–2030 годы) развития основных структурообразующих компонентов архитектурно-ландшафтной среды Академгородка (Верхней зоны) — общественно-пешеходных пространств, системы рекреационных пространств, пространств научного, образовательного, музейного, общественно-обслуживающего и культурного назначения — является насущная потребность в их радикальном преобразовании (реновации), объективно возникшая вследствие физического износа и несоответствия уровню изменившихся норм и стандартов.
- Адекватное и эффективное преобразование ключевых компонентов архитектурно-ландшафтной среды при сохранении ее оптимальных параметров и уникальных качественных характеристик — важнейшая научно-практическая проблема, решаемая на основе средового подхода путем создания комплексной концепции реновации.
- В качестве составной части разработки комплексной концепции в исследовании выявлены инновационные аспекты пространственно-средового развития.
К ним относятся следующие концептуальные аспекты:
Концепция преобразования общественно-пешеходных пространств, ориентированная на создание единой устойчивой системы пешеходных и велосипедных коммуникаций, базирующейся на сохранении исторически сложившегося каркаса и выявления новых, активно функционирующих направлений.
Подсистема пешеходных маршрутов дифференцируется на три типологические группы — транзитного, прогулочного и туристического-познавательного («научные тропы») назначения [Гамалей, 2022, с. 39–44] ;
Модернизация и преобразование пешеходных и велосипедных пространств осуществляется с учетом формирования мест созерцания композиций архитектурно-ландшафтного окружения.
Концепция реновации рекреационных пространств заключается в формировании целостной системы экстерьерных и интерьерных ландшафтно-средовых объектов на основе сохранения и рекультивации существующих, а также создания дополнительных компонентов в виде озелененных террас, эксплуатируемых кровель, зимних садов в структуре атриумов, галерей, павильонов, оранжерей и т. д.
Предусматривается комплекс мероприятий, направленных на модернизацию элементов благоустройства, ландшафтных композиций, оборудования, форм монументального и декоративного искусства с использованием новых технологических разработок и инновационных архитектурно-дизайнерских методов (рисунок 2).
Концепция преобразования общественных пространств научного, образовательного и музейного назначения состоит в реализации комплексного средового подхода с целью сохранения уникальных креативных качеств, присущих объектам историко-культурного наследия, и вместе с тем, создания функционально и эстетически полноценной среды на уровне новейших достижений в данных сферах.
Реализация концептуальных моделей реновации конкретных объектов включает формирование взаимосвязанной системы интерьерных и экстерьерных пространств с учетом особенностей ситуации месторазмещения в пространственно-средовом контексте Академгородка.
В зависимости от физического состояния объектов предусматриваются различные виды и масштабности реноваций — от частичной реконструкции и создания пристроенных и надстроенных объемов до полного сноса и нового строительства.
Полученные результаты в области дизайн проектирования будут востребованы в сфере креативных разработок рекреационной территории и общественно-пешеходных пространств Академгородка.
Список литературы
- Арбатский В.П. Особенности современного этапа преобразования архитектурно-ландшафтной среды Новосибирского Академгородка // Творчество и современность. 2022. №1 (16). С. 36–38
- Гамалей А.А. Инновационные аспекты формирования познавательно-туристической экосистемы объекта культурного наследия – достопримечательного места Новосибирский Академгородок // Творчество и современность. 2022. №1 (16). С. 39–44
- Гамалей А.А. Дизайн как инструмент брендинга наукоградов Новосибирской агломерации // Творчество и современность. 2021. №1 (14). С. 31–33.
- Десятниченко Д.Ю., Запорожан А.Я., Куклина Е.А. Рекреационное пространство как объект управления инновационным развитием территорий города // Управленческое консультирование. 2017. № 9. С. 64–73.
References
- Arbatsky V.P. Features of the current stage of transformation of the architectural and landscape environment of the Novosibirsk Academic Town. // Creativity and modernity. 2022 No. 1 (16). p. 36–38.
- Gamaley A.A. Innovative aspects of the formation of an educational and tourism ecosystem of a cultural heritage site - a landmark Novosibirsk Academgorodok // Creativity and modernity. 2022. № 1 (16). Pp. 39–44.
- Gamaley A.A. Design as a branding tool for science cities of the Novosibirsk agglomeration // Creativity and Modernity. 2021. №1 (14). Pp. 31–33.
- Desyatnichenko D.Yu., Zaporozhan A.Ya., Kuklina E.A. Recreational Space as an Object of Management of Innovative Development of the City Territories. Administrative Consulting. 2017 № 9. Pp. 64–73.