Евгений Герасимов
Доцент
Новосибирский государственный университет архитектуры, дизайна и искусств имени А.Д. Крячкова
gerasimovep@mail.ru, ORCID
Павел Семикин
Заведующий кафедрой
Новосибирский государственный университет архитектуры, дизайна и искусств имени А.Д. Крячкова
litodano@mail.ru
Evgenij Gerasimov
Associate Professor
Kryachkov Novosibirsk State University of Architecture, Design and Arts
gerasimovep@mail.ru, ORCID
Pavel Semikin
Head of Department
Kryachkov Novosibirsk State University of Architecture, Design and Arts
litodano@mail.ru
Аннотация
В статье приведено описание конструктивного решения здания НГУАДИ и результаты обследования строительных конструкций, проведенные в разные годы. Обследования показали, что некоторые конструкции находятся в ограниченно-работоспособном или в аварийном состоянии. С данными конструкциями были проведены необходимые ремонтные работы. Последнее обследование конструкций, проведенное в 2023 году, выявило ряд серьезных дефектов в одной из железобетонных балок перекрытия подвала. Дефекты свидетельствуют о снижении ее несущей способности. Для дальнейшей надежной эксплуатации предлагается провести ее усиление. Приведены несколько вариантов усиления железобетонной балки. Окончательный выбор одного из варианта связан с техническими и экономическими сторонами выбранного варианта. Но любой выбранный вариант повысит надежность железобетонной балки, и дальнейшая ее эксплуатация будет безопасной.
Abstract
The article describes the constructive solution of the NSUADA building and the results of a survey of building structures conducted in different years. Surveys have shown that some structures are in a limited operational or emergency condition. The necessary repairs were carried out with these structures. The last structural survey conducted in 2023 revealed a number of serious defects in one of the reinforced concrete beams of the basement floor. Defects indicate a decrease in its bearing capacity. For further reliable operation, it is proposed to strengthen it. Several options for reinforcing a reinforced concrete beam are given. The final choice of one of the options is related to the technical and economic aspects of the selected option. But any chosen option will increase the reliability of the reinforced concrete beam, and its further operation will be safe.
Ключевые слова: железобетонные конструкции, надежность строительных конструкций, усиление
Keywords: reinforced concrete structures, reliability of building structures, reinforcement
Учебное здание НГУАДИ им. А.Д. Крячкова имеет пять этажей и эксплуатируемый подвал. Здание было возведено в 1923 году. Первоначально оно было двухэтажным, но в 1929–1934 гг. была надстроена тремя этажами. В настоящее время оно является региональным памятником архитектуры.
В плане здание имеет П-образную форму с общими размерами 34,5×73,0 м. Внутренняя планировка помещений организована по коридорному принципу. Подвальные помещения выполнены с окнами и наружными оконными приямками.
По конструктивной схеме здание является каркасным. Стены в подвале до низа окон бутобетонные и монолитные бетонные толщиной от 820 до 1040 мм, на верхних этажах — возведены из глиняного кирпича. По контуру здания колонны утоплены в стены подвала и выступают из стен как пилястры, одновременно являясь контрфорсами. Несущие элементы каркаса: колонны и балки перекрытия — монолитные железобетонные, образующие многопролетные рамы в продольном и поперечном направлениях. Перекрытия над подвалом, первым и вторым этажами выполнены из монолитного железобетона. На остальных этажах возведены только элементы каркаса — монолитные колонны и балки. Перекрытия над третьим и четвертым этажами — деревянные. Внутренние стены возведены из шлакоблоков и глиняного кирпича. Крыша выполнена из подстропильных систем и деревянных ферм, по нижним поясам которых устроено подвесное деревянное перекрытие пятого этажа. Кровля односкатная из оцинкованной стали по разряженной обрешетке. Водосток организованный.
На протяжении всего периода эксплуатации здания, не проводился полный капитальный ремонт, а проводились в разные периоды текущие ремонты: ремонт кровли, перепланировка помещений с отделкой стен и потолков, замена окон. Отсутствие капитального ремонта привело к ограниченно-работоспособному состоянию отдельных строительных конструкций. Проведенные работы по оценке технического состояния несущих строительных конструкций в 1995, и в период с 2000 по 2023 гг., выявили ряд серьезных дефектов:
- деформации деревянных ферм крыши, превышающие предельно допустимые;
- повреждение элементов подстропильных систем, разрушение узлов примыкания элементов;
- поражение гнилью и грибком деревянных балок перекрытия;
- отслоение защитного слоя бетона монолитных плит перекрытий, оголение и коррозия арматурных стержней сеток;
- трещины в железобетонных балках с шириной раскрытия до 0,3 мм.
В 2015–2020 гг., были проведены ремонтные работы по усилению поврежденных железобетонных конструкций подвала и перекрытия подвала:
- усиление и ремонт колонн и балок перекрытия;
- ремонт отдельных участков монолитной плиты перекрытия.
Усиление колонн было выполнено в виде обоймы из металлических уголков. Усиление балок и ремонт колонн и плиты произведено с применением инновационного ремонтно-гидроизолирующего безусадочного быстротвердеющего состава повышенной прочности. Проведенные ремонтные работы позволят длительно и надежно эксплуатировать отремонтированные железобетонные конструкции.
В 2018 г. были отремонтированы монолитные железобетонные перекрытия толщиной 150 мм на всех этажах в помещениях санузлов, при этом произведено усиление плит дополнительными арматурными сетками и восстановлен в растянутых зонах защитный слой арматуры.
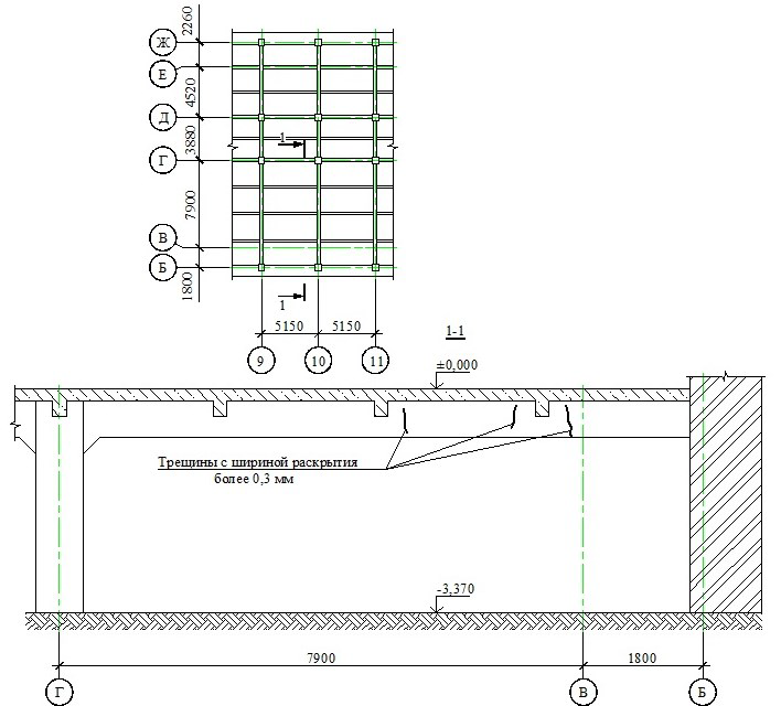
В 2023 г. в ходе проведения очередного обследования, были обнаружены трещины в балке перекрытия подвала, расположенной по ряду 10 в осях Б–Г (рисунок 1). Характер расположения трещин указывает на их силовое происхождение. Трещины располагаются как по боковой поверхности, так и по нижней грани. Ширина раскрытия составляет более 0,3 мм, что превышает предельно допустимую величину. Наличие трещин с такой шириной раскрытия, свидетельствует о существенном снижении несущей способности балки. Ее дальнейшая эксплуатация, без проведения усиления, представляет определенную опасность.

Figure 1. Cracks in the reinforced concrete beams of the basement floor
В целях повышения несущей способности, предлагается провести усиление балки. Известен способ усиления балок при помощи стальных хомутов, представляющих внешнюю поперечную арматуру (рисунок 2) [Голышев, Ткаченко 2001]. Установку поперечных стержней производят в приопорных зонах балки, закрепляя их сваркой или болтовыми соединениями на уголках, служащих в качестве элементов, передающих и распределяющих усилия от хомутов. Недостатками такого способа являются: техническая сложность выполнения сварочных работ и натяжения стержней в уровне перекрытия, высокая стоимость в связи с большим расходом стали.

Figure 2. A method of reinforcing a beam using metal clamps

Figure 3. A method of reinforcing a beam using glued reinforcing rods
Существуют альтернативные способы усиления балок, отличающиеся меньшим расходом стали. Один из них — установка арматурных стержней на клее (рисунок 3) [Голышев, Ткаченко 2001]. В местах установки стержня в теле бетона балки выполняют паз. Размеры паза должны быть больше длины и диаметра стрежня на 5 мм. Диаметр стержня составляет от 6 до 8 мм. Паз выполняю под прямым углом к трещине. Установка арматурных стержней в пазы осуществляется на защитно-конструкционном полимеррастворе.
Другой способ — это нанесения фибробетона (рисунок 4) [Патент]. Данный способ заключается в следующем: на боковые грани балки в приопорных участках наносят два слоя фибробетона. Для обеспечения надежного сцепления фибробетона с балкой, очищают и увлажняют контактную поверхность балки и устанавливают анкерные стержни. Установку анкерных стержней производят в сквозные просверленные в балке отверстия при помощи эпоксидного клея, либо «насухо». В последнем случае диаметр отверстий должен быть меньше диаметра стержней на 1 мм. Анкерные стержни выполняют из арматурной проволоки класса Вр500 диаметром 3, 4 или 5 мм. Толщину слоя фибробетона и количество анкерных стержней определяют расчетом. Минимальная толщина наносимого слоя должна быть не менее 40 мм.

Figure 4. A method of reinforcing a beam using fibre-glass
Еще существует способ усиления, полностью исключающий применение стали и бетона — это наклеивание углеродного волокна на поверхность усиливаемой балки (рисунок 5) [Мальганов, Плевков, Полищук 1990]. Для надежного сцепления углеволокна с бетоном, бетонную поверхность балки очищают от штукатурного слоя. Отколы бетона заделывают полимерраствором. Затем на поверхность бетона наносят тонкий слой полимерной композиции с последующей укладкой углеволокна. После укладки, на поверхность углеволокна вновь наносится слой полимерной композиции с последующей укладкой следующего слоя углеволокна. Процесс повторяется до тех пор, пока не будет достигнуто необходимое число наклеенных слоев углеволокна.

Figure 5. A method of reinforcing a beam using carbon fiber
Выводы
Как видно, способов усиления балок существует довольно много. При выборе одного из существующих способов необходимо руководствоваться прежде всего техническими и экономическими соображениями. Кроме того, элементы усиления не должны сильно визуально выделяться, чтобы не испортить внешний вид усиливаемой конструкции. Но любой вариант существенно повысит несущую способность балки, и дальнейшая ее эксплуатация будет безопасной.
Список литературы
- Голышев А.Б., Ткаченко И.Н. Проектирование усиления несущих железобетонных конструкций производственных зданий и сооружений. К.: Логос, 2001. 172 с.
- Патент (19) KZ(13)А4(11)23652. Способ усиления наклонных сечений железобетонных балок / Чернавин В.Ю., Мигов С.В., Веселов М.В. Заявл. 13.04.2009. Опубл. 17.01.2011.
- Мальганов А.И., Плевков В.С., Полищук А.И. Восстановление и усиление строительных конструкций аварийных и реконструируемых зданий. Атлас схем и чертежей. Томск.: Томский межотраслевой ЦНТИ, 1990. 316 с.
References
- Golyshev A.B., Tkachenko I.N. Design of reinforcement of load-bearing reinforced concrete structures of industrial buildings and structures. K.: Logos, 2001. 172 p.
- Patent (19) KZ(13)A4(11)23652. Method of reinforcement of inclined sections of reinforced concrete beams / Chernavin V.Yu., Migov S.V., Veselov M.V. Appl. 13.04.2009. Published. 17.01.2011.
- Malganov A.I., Plevkov V.S., Polishchuk A.I. Restoration and strengthening of building structures of emergency and reconstructed buildings. Atlas of schemes and drawings. Tomsk: Tomsk interbranch CNTI, 1990. 316 p.